Skip to main content

River House (Unbuilt)

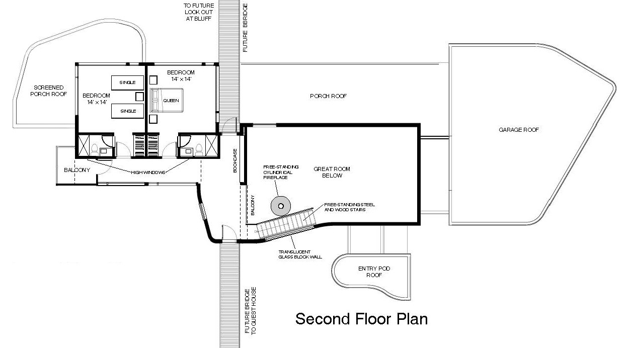
A new house on the banks of the Guadalupe River north of Boerne Texas. The site slopes down to the river from the street in a series of rock ledges, with the house on the last ledge whose edge drops forty feet to the bank of the river. The guest house sits on the ledge higher up from the house and connects to the second floor of the house at the two story living room. The same bridge runs through the house and out the other side, ending in a viewing platform that is cantilevered past the edge of the bluff. The other side of the Guadalupe is unspoiled Hill Country, part of a large ranch that extends to the horizon. The exterior of the house is corrugated polished stainless steel, a maintenance-free material whose shiny finish reflects the sun's heat and accentuates the curves of the building forms.

Guadalupe River House

The bridge that connects the guest house to the main house runs through the main house and out the other side as a viewing platform that cantilevers over the edge of the bluff.

Guadalupe River House

Modernist Industrial house on the edge of a bluff overlooking the Guadalupe River with unspoiled ranch land on the far side. The house is geared to the views and access to the surrounding environment from every room. The guest house sits on a ledge higher up the hill with a pedestrian bridge linking it to the second floor of the two-story living room of the main house. The entire house is clothed in maintenance-free corrugated Galvalume finish steel that pays homage to local rural barns, sheds, and feed mills.

Guadalupe River House

A bridge from the guest house leads to the second floor of the two-story living room of the main house.

Guadalupe River House

On the left side of the image an observation pier extends from the house for expansive views of the river. On the right is a screened porch off the master suite. Its roof acts as an outdoor deck for the guest bedrooms on the second floor.

Guadalupe River House

A bridge from the guest house leads to the second floor of the two-story living room of the main house.

Guadalupe River House

House as viewed from the uphill guest house.

Guadalupe River House

Guadalupe River House (Unbuilt)

Guadalupe River House (Unbuilt)

Guadalupe River House

Conceptual Sketch

Guadalupe River House (Unbuilt)

Guadalupe River House (Unbuilt)

Guadalupe River House

Guadalupe River House

Guadalupe River House (Unbuilt)

Guadalupe River House (Unbuilt)